Achtung: Dieser Teil der Webseite ist noch nicht fertiggestellt. Hier folgen in Kürze viele Bilder und noch bessere Texte, damit jeder unser Projekt versteht.
Das Projekt ist in
FÜNF SCHRITTE
unterteilt
Verbreitung
der Baupläne
Immer aktuell
Planung des Projekts
Bei der Planung geht es darum herauszufinden: Wie muss das Fahrzeug gebaut werden? Welches Material wird benötigt? In welcher Abfolge wird zusammengebaut? Wie viel kostet das alles? Wie finanziert sich das alles?


1. Digitale Modelle erstellen Als allererstes werden digitale Modelle von allen Teilen gemacht. Hierbei wird auch entschieden, wie stark das verwendete Material sein muss. Das kann man mit der voraussehbaren Belastung berechnen.
2. Materiallisten erstellen und Material besorgen Als Nächstes muss das benötigte Material zu einer sinnvollen Bestellmenge umgeformt werden. Das heißt, anstatt 20 10 mm Teile zu bestellen, werden 200 mm des Teils bestellt, zum Beispiel Flachstahl. Ist das vollendet werden Anbieter verglichen und das sinnvollste Angebot wird ausgewählt. Nun ist das Material auf dem Weg.


Bau des Fahrgestells
Ab gehts in die Werkstatt. Jetzt wird das Schweißgerät aufgebaut und die Flex gestartet. Das Fahrgestell wird aus Roh- und Fertigteilen gebaut bis es mit einer und dann sechs Personen fahrbar ist.




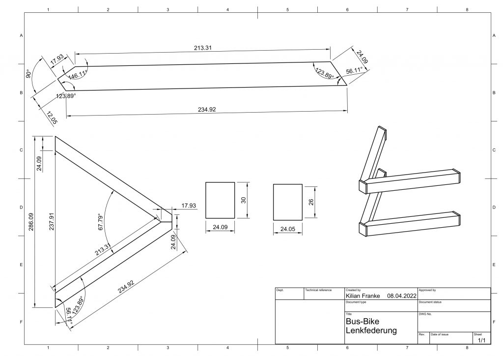
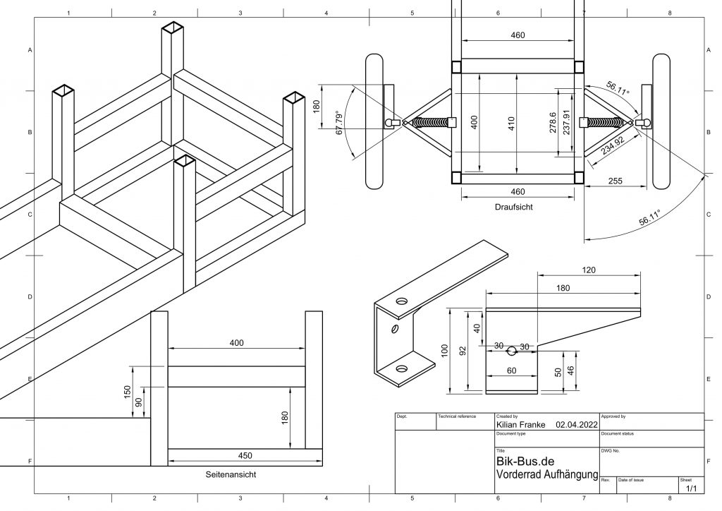
1. Bau der Lenkkonstruktion Als allererstes wird der komplexeste Teil des Fahrgestells gebaut. Der Lenkmechanismus besteht aus zwei Gabeln auf jeder Seite. Diese sind gefedert an dem vorderen Rahmen angebracht. An denen Gabeln hängen die Räder, welche von da aus auch gelenkt und gebremst werden.
2. Bau der hinteren Antriebswelle Damit das Bus-Bike auch fahren kann, brauch es eine zweite Achse. Diese liegt hinten und ist nicht lenkbar, dafür sind an ihr aber Ritzel angebracht, die von einer Kette betrieben werden können.
3. Bau des Fahrgestells Nun müssen die beiden Achsen zusammengebracht werden. Dieses Gestell besteht hauptsächlich aus zwei massiven Trägern, aber auch vielen kleinen Verstärkungen. Zudem wird vorne eine Stoßstange angebracht.
4. Bau der Mechanik Das Bus-Bike kann jetzt zwar rollen, aber um es von innen antreiben zu können müssen jetzt Tretlager mit Kurbeln und Pedalen dran verbaut werden. Über sie laufen frei laufende Kettenblätter damit nicht jeder immer Mittreten muss. Von diesen Kettenblättern wird die Kraft über eine Kette auf die Hinterachse übertragen.
Bau der Verkleidung
Damit das Bus-Bike nicht so nackt aussieht, muss eine Verkleidung her. Sie schützt vor Wind, Regen und Kälte und lässt einen bei jedem Wetter fahren. Dadurch wird auch die Langlebigkeit des Fahrzeugs verbessert.
1. Bau eines tragenden Gestells bevor eine richtige Verkleidung aufgebaut werden kann, muss ein Gestell her, das diese hält. Zudem wird so auch sichergestellt, dass man auf das Dach auch schwerere Sachen laden kann.
2. Bau der Verkleidung Nun wird auf das Gestell eine deckende Verkleidung gebaut. Sie besteht aus einer vor Regen schützenden Schicht und einer dämmenden. Beide sind modular angebaut.
3. Einbau der Fenster Die noch bestehenden Löcher in der Karosserie werden nun mit Plexiglas gefüllt um, obwohl man hindurchgucken kann geschützt ist.
Bau der Elektronik
Im letzten Schritt des Bauvorgangs wird das Bus-Bike funktionaler gemacht. Über praktische Features wie eine E-Unterstützung und eine Batterie zur Stromversorgung soll auch eine Musikanlage eingebaut werden. Die Batterie ist mit einem normalen Stromkabel ladbar, genau wie der Bulli auch an der Steckdose laufen kann, ohne eine Batterie zu benötigen. All das soll aus Gewichtsgründen allerdings einfach an- und abbaubar sein.
1. Einbau der Stromversorgung Die Batterie und Anschlussmöglichkeiten werden angebaut.
2. notwendige Elektronik Als Erstes werden notwendige Verbraucher wie ein Scheinwerfer und Innenbeleuchtung eingebaut. Zudem natürlich ein unterstützender Elektromotor.
3. unterhaltende Elektronik Nachdem alle ernsthaften Ansprüche gedeckt sind, kann sich den Luxusbedürfnissen zugewandt werden. Dazu zählen eine Musikanlage, oder auch ein Bordcomputer mit eingebautem GPS.
4. Verbesserung der Effizienz Zuletzt kommt der teure Part. Jetzt wird mit Solarplatten experimentiert und der Bus wird hoffentlich sogar autonom betreibbar sein.
Veröffentlichung der Projektdaten
Damit jeder in den Genuss eines Klimafreundlichen und verbindendem Camper kommen kann bereiten wir all unsere Planungen auf und stellen sie im Internet zur Verfügung.
1. Aufbereitung der Daten Alles wird auf das Relevante begrenzt, verständlich gemacht und anschließend geordnet. Die Pläne sollen den Baumeister an die Hand nehmen, um ihn zum Erfolg zu führen.
2. Verbreitung Sobald die Daten übersichtlich und sinnvoll aufbereitet sind, müssen sie nur noch unter die Menschen gebracht werden.




